Découvrez-le
Appartement neuf TVA 6% avec vue sur RAVeL (Bastogne)
Rue des Remparts 1, 15, 6600 Bastogne
TVA RÉDUITE À 6 % (SOUS CONDITIONS)
Imaginez-vous prendre votre café du matin sur une grande terrasse, face au RAVeL, tout en étant à quelques pas seulement des commerces, restaurants et services du centre de Bastogne. Ici, pas besoin de choisir entre nature et vie urbaine : vous avez les deux.De larges baies vitrées inondent le séjour de lumière et prolongent naturellement l’espace vers l’extérieur. Les volumes sont généreux, avec 3 mètres sous plafond pour une vraie sensation d’ouverture. Chaque détail a été pensé pour votre confort : finitions modernes, matériaux de qualité et possibilité de personnaliser votre cuisine grâce au budget déjà prévu.
Ce bien est équipé d’un système de chauffage par pompe à chaleur Air–Eau avec ventilo-convecteurs, d’un boiler de 180 L pour la production d’eau chaude et d’une ventilation double flux garantissant une température agréable toute l’année. Les parties communes bénéficient de panneaux photovoltaïques, et un parking privatif (en supplément) offre la possibilité d’installer une borne de recharge pour véhicule électrique.
La résidence a été conçue pour un confort haut de gamme : ascenseur, local à vélos et accès direct au RAVeL depuis le sous-sol – une rareté en centre-ville.
Ce bien bénéficie en plus de la TVA réduite à 6 % sous conditions, au lieu de 21 %, une opportunité rare pour un projet de cette qualité.
Contactez-nous dès aujourd’hui pour organiser une visite et découvrir ce cadre de vie unique à Bastogne.
-
-
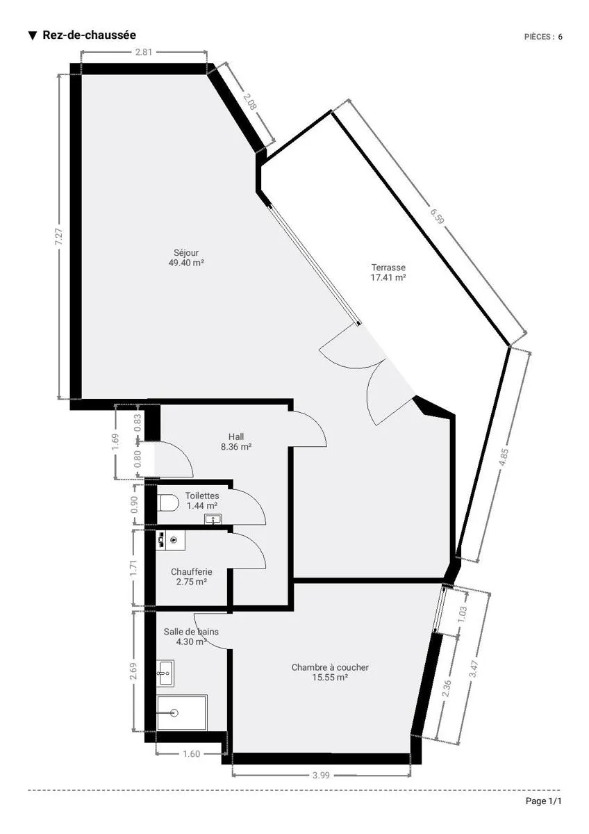
Surface habitable
91 m²
-
Nbr de chambre(s)
1
-
Nbr de salle(s) de bains
1
-
Etat
Neuf
-
Garage/Parking
Oui
-
-
-
Nbre de toilette(s)
1
-
Nombre de sdd
1
-
Chambre 1
16 m²
-
Nbre de terrasse(s)
1
-
Salle de séjour
50 m²
-
Salle de bain 1
5 m²
-
Orientation de la terrasse 1
ouest
-
Surface balcony 1
19 m²
-
Accès handicapés
Oui
-
Chauffage (ind/coll)
individuel
-
Ascenseur
Oui
-
Double vitrage
Oui
-
Chauffage
Chauffage mural
-
Type d'ascenseur
personnes
-
Sdb
douche dans le bain
-
Double vitrage
isol. thermique et acoustique
-
Parlophone
Oui
-
Videophone
Oui
-
Centrale tél.
Oui
-
Châssis
aluminium
-
Buanderie
Oui
-
Égouts
Oui
-
Électricité
Oui
-
Gaz
Oui
-
Câbles téléphoniques
Oui
-
Eau
Oui
-
Point de charge pour véhicules électriques
Oui
-
Concierge
Oui
-
Porte blindée
Oui
-
-
-
Année de construction
2024
-
Parking intérieur
Oui
-
Parking(s) intérieur
1
-
Type d'environnement
résidentiel
-
Type d'environnement 2
zone d'habitation
-
Exposition de la façade avant
est
-
-
-
Sous régime TVA
Oui
-
-
-
Permis de bâtir
Oui
-
Destination bâtiment
privé - habitation
-
Affectation urbanistique
zone d'habitat
-
Certificat d'électricité
oui, conforme
-
-
-
Magasins
627 m
-
Écoles
207 m
-
Transports en commun
267 m
-
Centre sportif
154 m
-
Magasins
Oui
-
Ecoles
Oui
-
Transports en commun
Oui
-
Centre sportif
Oui
-
Autoroute
Oui
-
Autoroute
1800 m
-









