Découvrez-le
Bungalow avec piscine et jardin orienté plein sud (Hamoir)
Allée du Domaine 79, 4180 Hamoir
C’est au cœur du très prisé clos résidentiel de l’Allée du Domaine à Hamoir que se dévoile ce bungalow à l’abri des regards, entièrement rénové en 2021, posé sur une parcelle de 1.894 m² orientée plein sud.
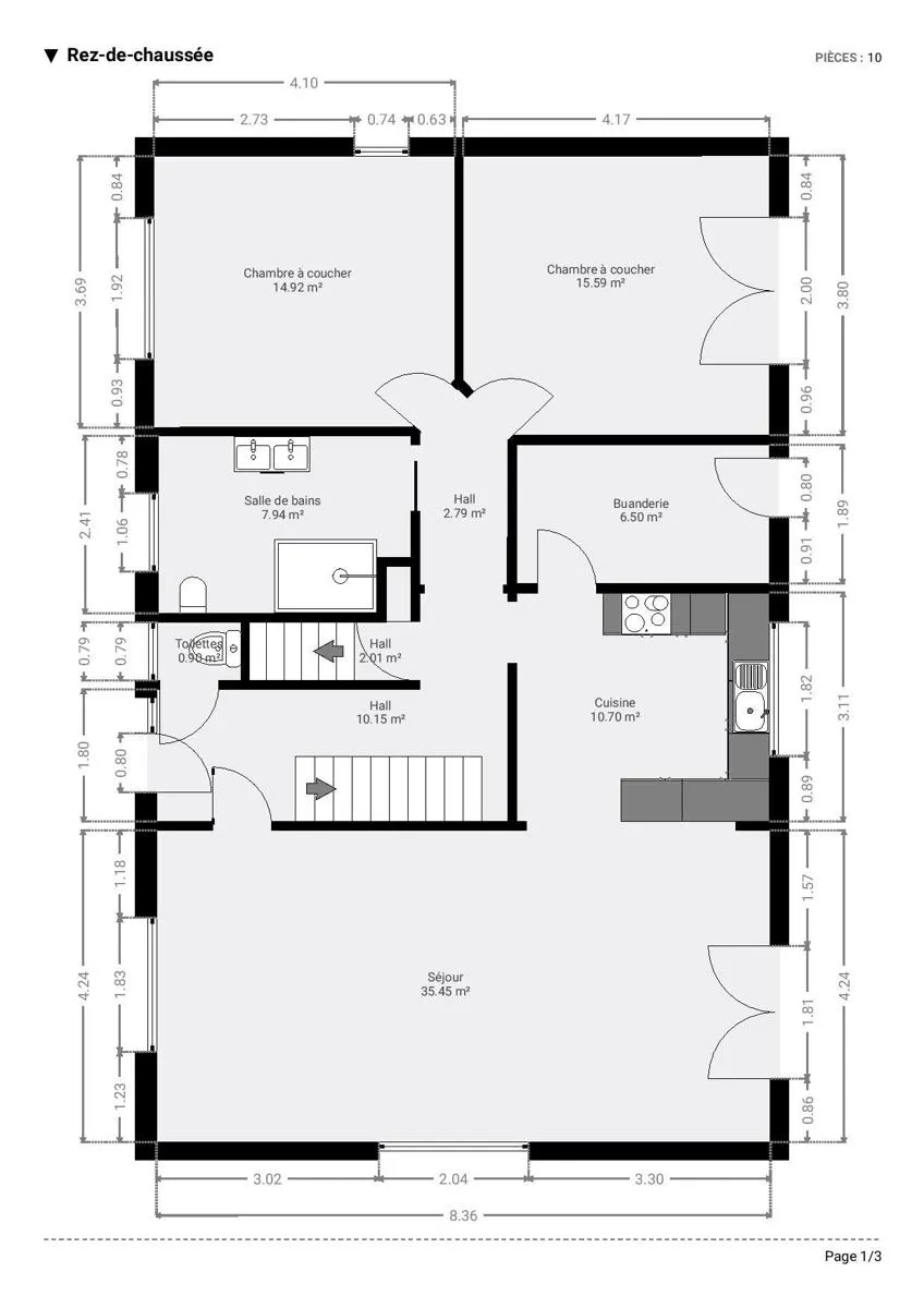
Derrière le portail, une allée privative vous mène à cette propriété en retrait de la rue, calme et discrète. Dès l’entrée, un hall central distribue les espaces avec logique et élégance.
La pièce de vie totalise 46 m² et profite d’une belle luminosité naturelle grâce à ses ouvertures plein sud. Elle regroupe un salon confortable, une salle à manger accueillante et une cuisine ouverte à l’esthétique sobre en aluminium brossé. Une arrière-cuisine/buanderie attenante complète ce bel ensemble, discret et fonctionnel.
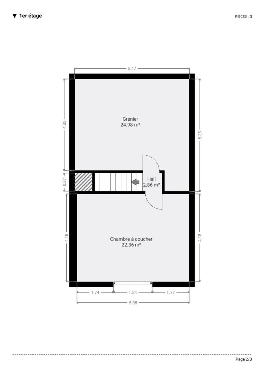
Côté nuit, le rez-de-chaussée propose deux chambres de 16 et 15 m², ainsi qu’une salle de bain moderne avec douche. À l’étage, une troisième chambre de 22 m² offre un bel espace complémentaire, accompagnée d’un grenier de 25 m², idéal pour le rangement ou un futur aménagement.
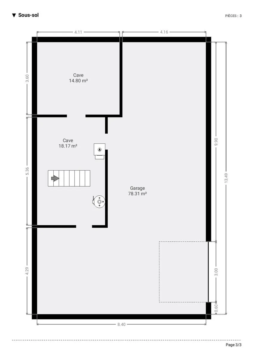
À l’extérieur, la terrasse de 50 m² s’ouvre sur une piscine exposée plein sud, entourée d’un jardin sans vis-à-vis, véritable écrin de verdure, parfait pour les moments de détente ou les réceptions en toute intimité. Le sous sol, accessible par l’arrière, offre 110 m² de caves permettent le stationnement de deux véhicules, tandis que cinq emplacements extérieurs assurent un confort rare pour vos invités ou votre quotidien.
Côté technique, la maison est équipée de 26 panneaux photovoltaïques installés en 2020, garantis 25 ans, apportant un véritable gain énergétique au quotidien.* Le chauffage est au mazout et l’isolation est performante (PEB C).
Un bien rare à Hamoir, où qualité de vie, agencement intelligent et environnement privilégié se rencontrent. L’adresse, la disposition et les extérieurs en font une opportunité unique pour ceux qui recherchent un bien soigné, prêt à vivre, dans l’un des plus beaux quartiers de la région.
* Puissance totale installée : 8.320 W – Onduleur garanti 10 ans. Détails disponibles sur demande.
-
-
Surface habitable
135 m²
-
Nbr de chambre(s)
3
-
Nbr de salle(s) de bains
1
-
Surface du terrain
1894 m²
-
Etat
Excellent état
-
Garage/Parking
Oui
-
-
-
Surface de terrasse 2
50 m²
-
Nbre de toilette(s)
1
-
Nombre de sdd
1
-
Chambre 1
22 m²
-
Chambre 2
16 m²
-
Chambre 3
15 m²
-
Nbre de terrasse(s)
1
-
Salle de séjour
35 m²
-
Cuisine
11 m²
-
Orientation de la terrasse 1
sud
-
Cuisine
Oui
-
Chauffage (ind/coll)
individuel
-
Double vitrage
Oui
-
Chauffage
mazout (chauf. centr.)
-
Type de cuisine
amer. équipée
-
Sdb
douche
-
Date du dernier entretien de la chaudière
05/01/2025 00:00
-
Type de revêtement de sol
carrelages
-
Air conditionné
Oui
-
Châssis
PVC
-
Buanderie
Oui
-
Grenier
Oui
-
Cave
Oui
-
Électricité
Oui
-
Télévision par cable
Oui
-
Eau
Oui
-
-
-
Année de construction
1997
-
Parking intérieur
Oui
-
Parking extérieur
Oui
-
Année de rénovation
2021
-
Parking(s) intérieur
2
-
Parking(s) extérieur
5
-
Type de toit
en pente
-
Orientation du bâtiment
sud
-
Type d'environnement
boisé
-
Exposition de la façade avant
nord
-
Risque d'inondation
pas situé en zone inondable
-
Risque d'inondation 2023
Classe A (aucune chance)
-
Piscine
Oui
-
Citerne d'eau
Oui
-
-
-
E total
33642 kWh
-
PEB code unique
20250425010365
-
PEB valide jusqu'au
25/04/2035
-
Date du PEB
25/04/2025
-
PEB
-
-
-
Revenu cad. indexé
2 990 €
-
Revenu cadastral (€)
1 332 €
-
-
-
Affectation urbanistique
Habitude
-
Permis de bâtir
Oui
-
Destination bâtiment
privé - habitation
-
Affectation urbanistique
zone d'habitat
-
Attestation du sol
Oui
-
Capacité de la citerne à mazout
2000
-
Certificat d'électricité
oui, non conforme
-









