Découvrez-le
Spacieuse maison 4 façades rénovée (Werbomont)
Route de Bastogne 12, 4190 Ferrières
Située à Werbomont (Ferrières), cette maison quatre façades développe 180 m² habitables sur une parcelle de 1.313 m², dans un environnement verdoyant, calme et proche des commodités et des grands axes. Répartie sur trois niveaux, elle offre un cadre de vie pratique et confortable.
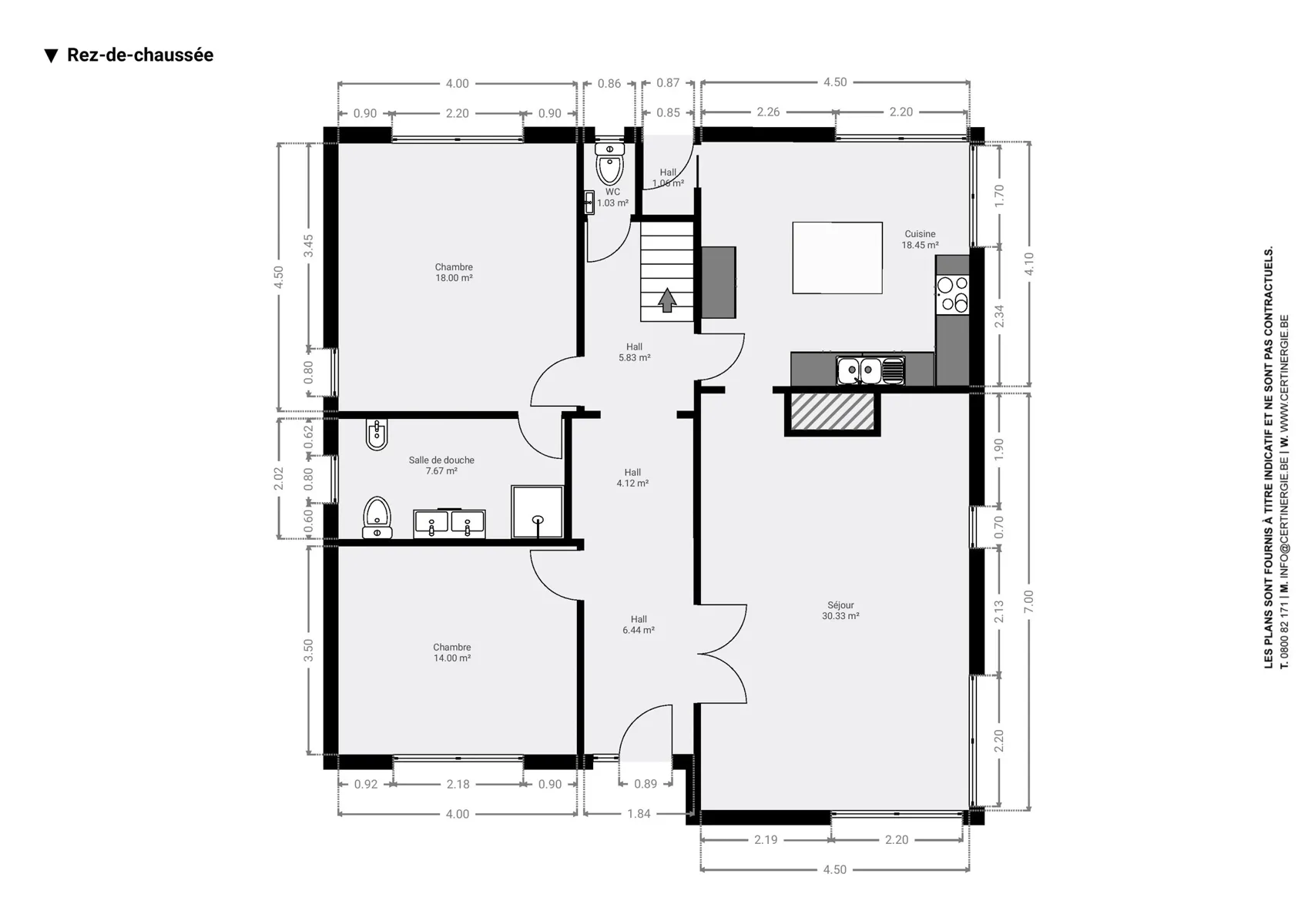
Le rez-de-chaussée (niveau rue) permet une vie complète de plain-pied. Il se compose d’un hall d’entrée, de deux chambres, d’une salle de bain rénovée en 2021, d’un séjour lumineux et d’une cuisine moderne, blanche, avec plan de travail noir en granite et carrelage métro noir. L’ensemble est soigné, fonctionnel et chaleureux.
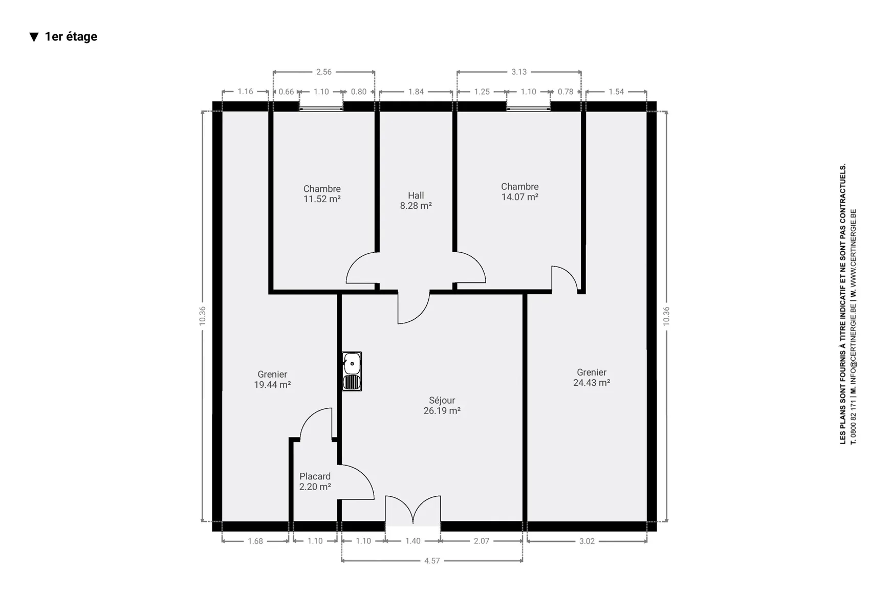
À l’étage, trois chambres supplémentaires viennent compléter l’espace nuit, dont une avec accès à un grenier. Deux balcons orientés sur l’extérieur permettent de profiter du cadre.
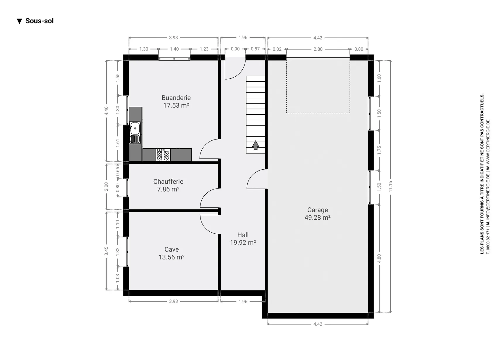
Au sous-sol, le bien offre un garage, une buanderie ainsi que des caves sur une superficie de 100 m² exploitables, parfaits pour du rangement, cuisine d’été, un atelier ou un espace de loisirs.
Les prestations techniques sont au rendez-vous : nouveaux châssis (2023) avec volets automatiques connectés via application mobile, adoucisseur d’eau au sel installé en 2022, chauffage central au mazout.
PEB D - 20250827022868 (rapport disponible)
Électricité : non-conforme (rapport disponible)
-
-
Surface habitable
180 m²
-
Nbr de chambre(s)
5
-
Nbr de salle(s) de bains
1
-
Surface du terrain
1313 m²
-
Etat
Remis à neuf
-
Garage/Parking
Oui
-
-
-
Largeur front de rue
29 m
-
Surface bâtie
155 m²
-
Nbre de toilette(s)
1
-
Nombre de sdd
1
-
Chambre 1
26 m²
-
Chambre 2
18 m²
-
Chambre 3
14 m²
-
Chambre 4
14 m²
-
Chambre 5
11 m²
-
Largeur de façade
29 m
-
Salle de séjour
30 m²
-
Cuisine
19 m²
-
Surface balcony 1
8 m²
-
Surface balcony 2
5 m²
-
Cuisine
Oui
-
Chauffage (ind/coll)
individuel
-
Double vitrage
Oui
-
Chauffage
mazout (chauf. centr.)
-
Type de cuisine
amer. super-équipée
-
Sdb
douche
-
Double vitrage
isol. thermique et acoustique
-
Type de revêtement de sol
parquet
-
Châssis
PVC
-
Buanderie
Oui
-
Grenier
Oui
-
Cave
Oui
-
Égouts
Oui
-
Électricité
Oui
-
Télévision par cable
Oui
-
Volets
Oui
-
-
-
Année de construction
1968
-
Parking intérieur
Oui
-
Parking extérieur
Oui
-
Parking(s) intérieur
1
-
Parking(s) extérieur
4
-
Type de toit
en pente
-
Type d'environnement
calme
-
Type d'environnement 2
campagne
-
Risque d'inondation
pas situé en zone inondable
-
Risque d'inondation 2023
Classe A (aucune chance)
-
-
-
Revenu cadastral (€)
1 026 €
-
-
-
Permis de bâtir
Oui
-
Destination bâtiment
privé - habitation
-
Affectation urbanistique
zone d'habitat
-
Certificat d'électricité
oui, non conforme
-
Certificat électricité - date
27/08/2025
-
-
-
Magasins
430 m
-
Écoles
1700 m
-
Transports en commun
189 m
-
Centre sportif
1000 m
-
Magasins
Oui
-
Ecoles
Oui
-
Transports en commun
Oui
-
Centre sportif
Oui
-
Autoroute
Oui
-
Autoroute
468 m
-









