Découvrez-le
Villa 4 façades au Bois de la Croix-Claire (Nandrin)
Bois de la Croix Claire 134, 4550 Nandrin
Dans l’un des quartiers résidentiels les plus prisés de Nandrin, cette villa 4 façades construite en 1986 développe environ 180 m² habitables sur un terrain de 987 m², orienté sud-est et sans vis-à-vis. Elle bénéficie d’un cadre exceptionnel, calme, verdoyant et proche de toutes les commodités (écoles, commerces, axes principaux).
Le rez-de-chaussée offre un bel espace de vie avec feu ouvert, une cuisine, une salle de bains, un bureau et une chambre, permettant une vie de plain-pied si souhaité. À l’étage, on retrouve deux chambres accompagnées d’une salle de bains supplémentaire.
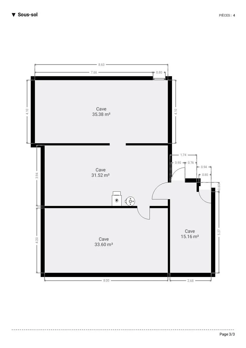
La maison dispose également de 100 m² de caves exploitables, d’un garage et d’une toiture en excellent état. Son PEB C constitue un atout rare pour une construction de cette époque.
Quelques travaux de rafraîchissement sont à prévoir (électricité, cuisine, sanitaires), mais le bien offre un fort potentiel de valorisation, notamment via un projet de home staging.
L’extérieur est un véritable havre de paix, avec une terrasse couverte par une pergola donnant sur un jardin sans vis-à-vis, parfaitement exposé.
Une opportunité idéale pour une famille à la recherche d’un bien à personnaliser dans un cadre résidentiel de qualité.
-
-
Surface habitable
180 m²
-
Nbr de chambre(s)
3
-
Nbr de salle(s) de bains
2
-
Surface du terrain
987 m²
-
Etat
À rafraîchir
-
Garage/Parking
Oui
-
-
-
Largeur front de rue
23 m
-
Surface bâtie
183 m²
-
Nbre de toilette(s)
1
-
Nombre de sdd
2
-
Chambre 1
16 m²
-
Chambre 2
21 m²
-
Chambre 3
23 m²
-
Largeur de façade
13 m
-
Nbre de terrasse(s)
1
-
Salle de séjour
34 m²
-
Cuisine
16 m²
-
Bureau
15 m²
-
Orientation de la terrasse 1
sud-est
-
Surface balcony 1
20 m²
-
Cuisine
Oui
-
Double vitrage
Oui
-
Chauffage
Chauffage mural
-
Type de cuisine
amer. semi-équipée
-
Sdb
douche dans le bain
-
Date du dernier entretien de la chaudière
03/01/2025 00:00
-
Type de revêtement de sol
carrelages
-
Châssis
bois
-
Buanderie
Oui
-
Bureau
Oui
-
Cave
Oui
-
Égouts
Oui
-
Électricité
Oui
-
Télévision par cable
Oui
-
Eau
Oui
-
-
-
Année de construction
1986
-
Parking intérieur
Oui
-
Parking extérieur
Oui
-
Parking(s) intérieur
1
-
Parking(s) extérieur
2
-
Orientation du bâtiment
sud-est
-
Type d'environnement
campagne
-
Type d'environnement 2
côté ensoleillé
-
Exposition de la façade avant
nord-ouest
-
Risque d'inondation
pas situé en zone inondable
-
Risque d'inondation 2023
Classe A (aucune chance)
-
Citerne d'eau
Oui
-
-
-
E total
52261 kWh
-
PEB code unique
20220405014147
-
PEB valide jusqu'au
05/04/2032
-
Date du PEB
05/04/2022
-
PEB
-
-
-
Revenu cadastral (€)
959 €
-
-
-
Destination bâtiment
privé - habitation
-
Affectation urbanistique
zone d'habitat
-
Capacité de la citerne à mazout
2000
-
Certificat d'électricité
oui, non conforme
-
Certificat électricité - date
07/04/2025
-
-
-
Magasins
926 m
-
Écoles
1100 m
-
Transports en commun
940 m
-
Magasins
Oui
-
Ecoles
Oui
-
Transports en commun
Oui
-
Autoroute
Oui
-
Autoroute
11000 m
-









